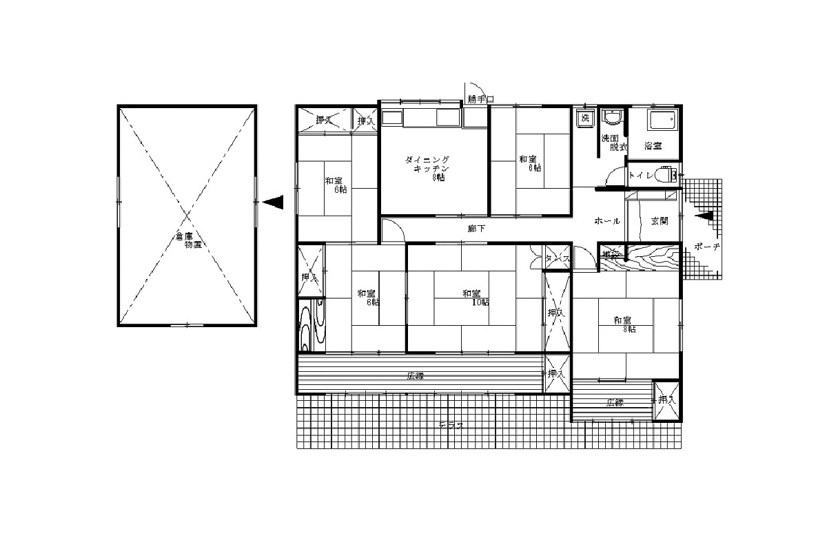
潮岬(5DK+倉庫)
- 価格1,900万円
- 所在地東牟婁郡串本町潮岬3349-182
- 土地面積938.00㎡(283.74坪)
- 交通JR串本駅から串本町コミュニティバスで12分「上野」下車徒歩12分
物件詳細情報
- 種類 居宅
- 地目 原野
- 床面積 1F:145.96㎡(44.15坪)
- 構造 木造・瓦葺・平家建
- 間取 5DK+倉庫
- 建築年月 昭和53年6月
- 法令上の制限 都市計画区域外
- 標高 49.9m
- 取引態様 仲介
- 特記事項 附属建物、物置:木造・亜鉛メッキ鋼板葺・平家建 33.01㎡
この物件へのお問い合わせ










